Коттедж, Курск, 9а Показать на карте
Курск
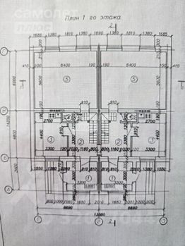
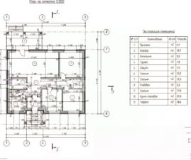
Арт. 107794729 ВНИМАНИЕ! ВНИМАНИЕ! ВНИМАНИЕ!Предлагается к продаже действительно достойное предложение - коттедж 277,6 кв.м. на участке 15,5 соток.Этот Дом точно заслуживает внимания! Можно сказать сделан по ГОСТУ).3х этажный. Перекрытия железобетонный плиты, стены -кирпич. Встроенный гараж+смотровая яма. Гараж на участке. Летняя кухня.Участок 1562 кв.м. имеет правильную геометрию, позволяющий расположить на участке все необходимое, включая сад, плодово ягодные насаждения и даже место для содержания небольшого хозяйства.Сам дом: 1й этаж: гостиная 24,2 кв.м, кухня 11,1 кв.м., совмещенный с/у и ванная комната - 9 кв.м., спальня 15,1кв.м ,спальня 16,4 кв.м. коридор 12,3 кв.м.2-й этаж: спальня 8,2 кв.м., спальня 12,7 кв.м., спальня 6 кв.м., спальня 20,7 кв.м.На втором этаже имеется прекрасный Зимний сад 43,5 кв.м.Имеется рабочий камин, перед которым можно часами проводить в холодные зимние дни, читая любимые книги для себя так и своим детям, внукам) Это будет место сбор всей семьи).Так же имеется большое подсобное помещение под домом 42 кв.м.+Подвал.Дом полностью готов к проживанию. Да ремонт не евро, но все в исключительно прекрасном состоянии.Территория огорожена, На участке имеется небольшой бассейн, точнее он подготовлен.А вы посмотрите какая Ель стоит по среди двора! Это просто сказка для детей на Новогодние праздники!Дополнительное строение на участке можно использовать как летнюю кухню, спортзал. Прекрасно подойдет для проведения различных мероприятий.2 Гаража.Локация дома - тоже заслуживает определенного внимания, дом удален от городской суеты, но и в тоже время имеет доступность ко сей необходимой инфраструктуры. Школа, детский садик, магазины. Река Сейм в шаговой доступности, недалеко находится новый Пляж. У нас строят новую дорогу через Сейм, которая соединит КЗТЗ и пр-кт Ленинского Комсомола.Документы готовы. Рассмотрим все варианты расчета. Ждем Вас в гости.
277 м2
3 этажа
Кирпич
- Показать контакты
- Добавить в избранное
277 м2
3 этажа
Кирпич
15 000 000
54 035 /м2
